Bouwkosten
Elke woning van Oosthuis is maatwerk. Om u toch houvast te geven, vindt u hier indicatieve prijzen en budgetklassen.
Elke woning is maatwerk
Wat een woning kost, is niet 123 te zeggen omdat de woning op maat voor u wordt ontworpen en gebouwd. Maar wat we wel kunnen zeggen is dat de meeste Oosthuiswoningen tussen de 55m2 en 100m2 groot zijn en tussen de 150.000 en 300.000 euro kosten. Dat is inclusief btw, volledige afwerking, keuken, sanitair, vloerverwarming, airco en installaties voor electra, warmwater en ventilatie. Uiteraard 100% electrisch en zeer energiezuinig.
De isolatiewaardes van elke Oosthuis zijn hoog, dit zorgt voor een aangenaam binnenklimaat en een lage energierekening. Elke woning wordt gebouwd volgens het BBL-wonen (voorheen bouwbesluit) met energielabel A+++ of A++.
Wat zijn de bijkomende kosten?
Om de prefab woning op zijn plek te krijgen moet er het een en ander gebeuren: vergunningaanvraag (indien van toepassing), grondwerk, fundering, transport en plaatsen met behulp van een hijskraan.
Deze werkzaamheden verzorgen wij samen met vaste partners. De kosten zijn vanzelfsprekend afhankelijk van veel factoren, maar bedragen meestal 10 tot 15% van de woningprijs.
Slim en efficient wonen
€150.000 - €200.000
Inclusief BTW
Ruim en voordelig wonen
€200.000 - €250.000
Inclusief BTW
Riant wonen
€ 250.000 - €300.000
Inclusief BTW
Ruim en voordelig wonen
€300.000 - ...
Inclusief BTW
Bijkomende kosten
Bovenstaande prijsranges zijn indicatief voor de prefab woning zelf, de prijs is inclusief btw en volledige afwerking. De volgende kosten komen hier nog bij:
- Grondwerk en fundering – terreinvoorbereiding en fundering op locatie
- Transport en plaatsing – levering en hijsen met kraan
- Vergunningaanvraag – indien van toepassing voor uw locatie
- Nutsvoorzieningen – aansluiting van elektra, water en riolering
- Kwaliteitsborger – in geval van permanente woningen
Reken voor deze bijkomende werkzaamheden indicatief op 10-15% van de woningprijs.
Uitgelichte projecten
Bekijk een selectie van gerealiseerde woningen en zie hoe keuzes in ontwerp en afwerking het budget beïnvloeden.
- Uitgelicht
- Afgerond
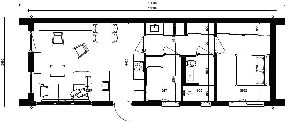
Vakantiewoning van 54 m2 in Egmond. Voor deze klant mogen...
- Uitgelicht
- Afgerond
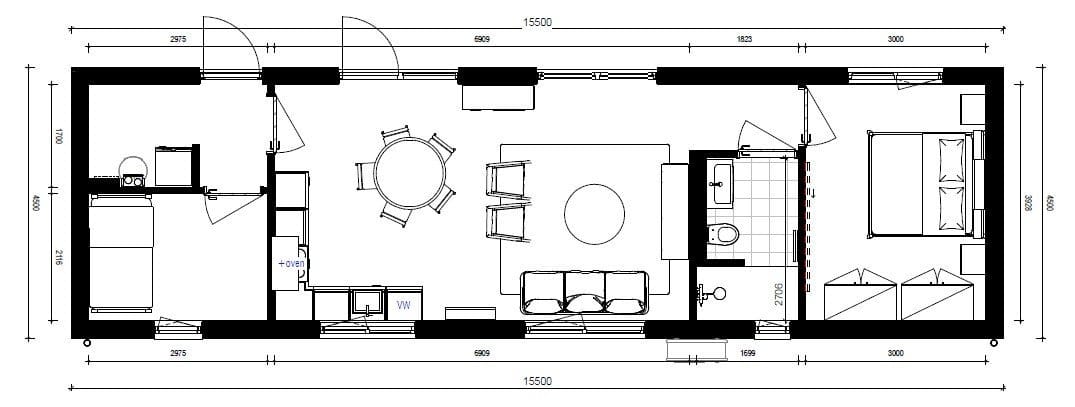
Pré-mantelzorgwoning 100 m2 in Didam. Voor deze klanten mogen we...
- Uitgelicht
- Afgerond
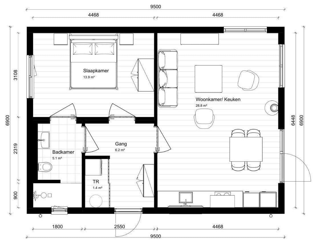
Pré-mantelzorgwoning 83 m2 in Aalten. Voor deze klanten uit Aalten...
Wilt u weten wat er binnen uw wensen en budget mogelijk is?
Doe de woonplan-check of neem contact met ons op voor persoonlijk advies.






















































































