Mantelzorgwoning 61m² in Westendorp

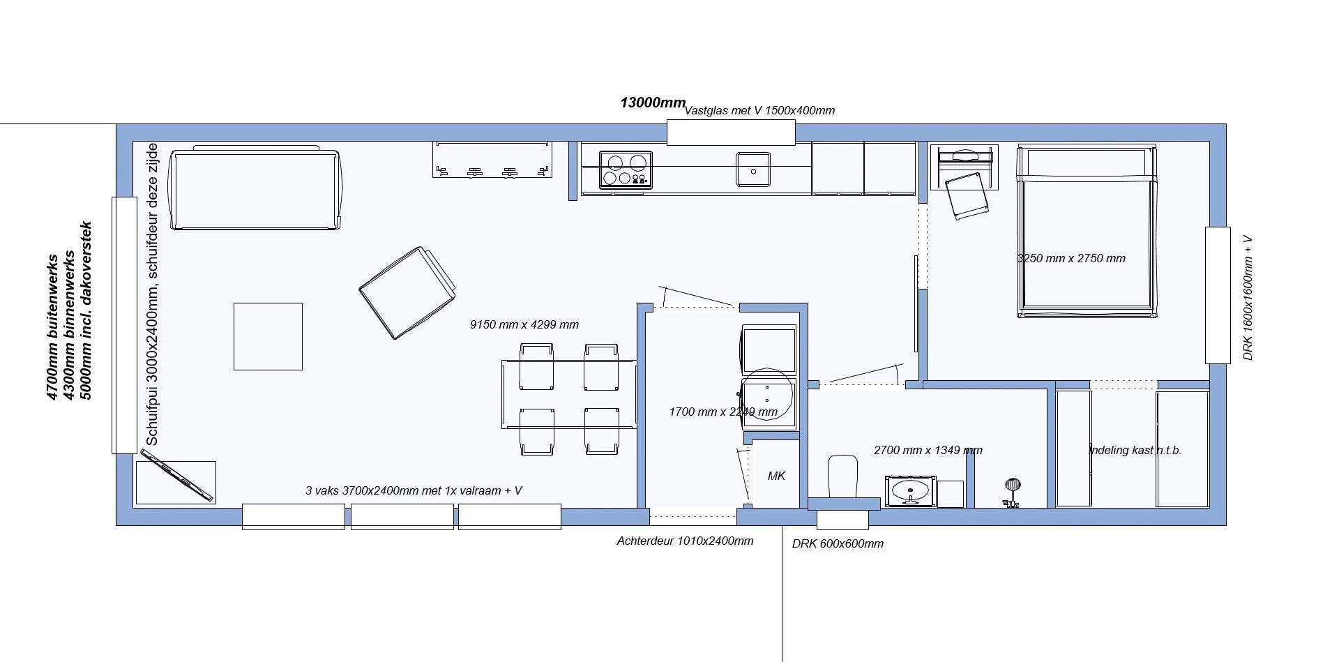
Seniorenwoning van 61m2 in Westendorp. In november 2021 hebben we deze comfortabele senioren woning geplaatst op terrein bij familie. De woning is voorzien van een open keuken met ruime zithoek, één slaapkamer met inloopkast en uiteraard een royale badkamer. Deze Oosthuis is in 1 ochtend geplaatst en kan in de toekomst even makkelijk weer worden opgepakt indien wenselijk. Heeft u ook interesse in een comfortabele, duurzame en op maat gemaakte prefab seniorenwoning of prefab mantelzorgwoning, maar wilt u hier niet jaren op hoeven wachten? Neem dan contact op met ons op voor meer informatie.

De realisatie

Het ontwerp

Specificaties

Oppervlakte

61 m²

Dakvorm

Lessenaarsdak

Slaapkamers

1

Bouwtijd

10 weken

Bouwjaar

2021

Doe de Woonplan-check!

Met de woonplan-check brengen we samen in kaart waar u staat en of uw plannen aansluiten bij de manier van bouwen van Oosthuis.

U beantwoordt stap voor stap een aantal gerichte vragen en ontvangt direct per e-mail de uitkomst. Zo krijgt u helder inzicht in uw situatie en weet u wat een logische volgende stap is.

Uitgelichte projecten

Een selectie van gerealiseerde prefab woningen – zo kan uw thuis er ook uitzien.

Mantelzorgwoning 80 m2 in Eerbeek

Omdat alle woningen die wij bouwen samen met de klant...

Mantelzorgwoning 100 m2 in Winterswijk

Deze mooie prefab mantelzorgwoning van 100 m2 is royaal en...

Mantelzorgwoning 80 m2 in Halle

Halle wordt opnieuw een Oosthuis rijker! Deze prefab mantelzorgwoning van...

Stuur ons een bericht

Laat uw gegevens achter en wij nemen zo snel mogelijk contact met u op.
Heeft u nog geen concreet plan? Vul dan de Woonplan-check in.

Contactgegevens

Telefoon

0314 216 048

E-mail

info@oosthuis.nl

Bezoekadres

Innovatieweg 19, 7007CD Doetinchem

Plan een oriëntatiegesprek

Kom langs in onze showroom in Doetinchem voor een vrijblijvend gesprek. We nemen de tijd om uw wensen te bespreken en u te adviseren over de mogelijkheden.

Benieuwd hoe uw prefab woning eruit kan zien?

Neem contact met ons op of doe de woonplan-check.

Ontvang de bouwtekeningen per e-mail

Vul uw gegevens in en ontvang de bouwtekeningen van deze woning.