Mantelzorgwoning van 70m² in Warnsveld

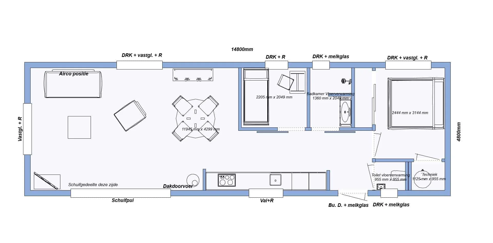
Tijdelijke woning 70m2 in Warnsveld. Onze opdrachtgevers hadden toestemming van de gemeente om voor een periode van 15 jaar een prefab woning van 70m2 voor permanent gebruik te realiseren op terrein van de ouders. Van binnen is het prefab huisje licht en ruim door de praktische indeling. Er zijn twee slaapkamers, een open keuken en een riante woon/eetkamer. Het dak loopt iets schuin af (lessenaarsdak) met een overstek voorzien van buiten verlichting. Verwarming middels een gesloten houtkachel en infraroodpanelen. In de zomer wordt de woning gekoeld doormiddel van een airco (split met buiten unit). De gevel is bekleed met verduurzaamd onbehandeld grenen dat geleidelijk zal vergrijzen. De kozijnen en dakranden zijn van kunststof, door de houtnerf is dat een uitstekende combi met de houten gevel.

Het ontwerp

Specificaties

Oppervlakte

70 m²

Dakvorm

Lessenaarsdak

Slaapkamers

2

Bouwjaar

2022

Doe de Woonplan-check!

Met de woonplan-check brengen we samen in kaart waar u staat en of uw plannen aansluiten bij de manier van bouwen van Oosthuis.

U beantwoordt stap voor stap een aantal gerichte vragen en ontvangt direct per e-mail de uitkomst. Zo krijgt u helder inzicht in uw situatie en weet u wat een logische volgende stap is.

Uitgelichte projecten

Een selectie van gerealiseerde prefab woningen – zo kan uw thuis er ook uitzien.

Mantelzorgwoning 80 m2 in Eerbeek

Omdat alle woningen die wij bouwen samen met de klant...

Mantelzorgwoning 100 m2 in Winterswijk

Deze mooie prefab mantelzorgwoning van 100 m2 is royaal en...

Mantelzorgwoning 80 m2 in Halle

Halle wordt opnieuw een Oosthuis rijker! Deze prefab mantelzorgwoning van...

Stuur ons een bericht

Laat uw gegevens achter en wij nemen zo snel mogelijk contact met u op.
Heeft u nog geen concreet plan? Vul dan de Woonplan-check in.

Contactgegevens

Telefoon

0314 216 048

E-mail

info@oosthuis.nl

Bezoekadres

Innovatieweg 19, 7007CD Doetinchem

Plan een oriëntatiegesprek

Kom langs in onze showroom in Doetinchem voor een vrijblijvend gesprek. We nemen de tijd om uw wensen te bespreken en u te adviseren over de mogelijkheden.

Benieuwd hoe uw prefab woning eruit kan zien?

Neem contact met ons op of doe de woonplan-check.

Ontvang de bouwtekeningen per e-mail

Vul uw gegevens in en ontvang de bouwtekeningen van deze woning.