Vakantiewoning 70m² in Zeeland

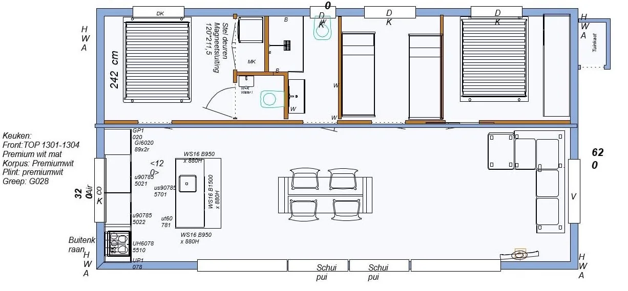
Vakantiewoning van 70m2 in Zeeland. In juni 2021 is deze ruime vakantiewoning woning geplaatst voor een particuliere klant. De familie zal hier veel mooie en comfortabele momenten gaan beleven. De woning is onder andere voorzien van 3 slaapkamers, kookeiland, inbouwkasten, vloerverwarming en een terras met geïntegreerde plantenbakken.

Het resultaat

Het ontwerp

Specificaties

Oppervlakte

70 m²

Dakvorm

Plat dak

Slaapkamers

3

Bouwtijd

7 weken

Bouwjaar

2021

Doe de Woonplan-check!

Met de woonplan-check brengen we samen in kaart waar u staat en of uw plannen aansluiten bij de manier van bouwen van Oosthuis.

U beantwoordt stap voor stap een aantal gerichte vragen en ontvangt direct per e-mail de uitkomst. Zo krijgt u helder inzicht in uw situatie en weet u wat een logische volgende stap is.

Uitgelichte projecten

Een selectie van gerealiseerde prefab woningen – zo kan uw thuis er ook uitzien.

Zes vakantiewoningen in Doetinchem

Zes tiny hotels 36 m2 in Doetinchem. Deze bijzondere opdracht...

Vakantiewoning 54m² in Egmond

Vakantiewoning van 54 m2 in Egmond. Voor deze klant mogen...

Vakantiewoning 51m² in Egmond

Vakantiewoning van 51 m2 in Egmond. Voor deze klant mogen...

Stuur ons een bericht

Laat uw gegevens achter en wij nemen zo snel mogelijk contact met u op.
Heeft u nog geen concreet plan? Vul dan de Woonplan-check in.

Contactgegevens

Telefoon

0314 216 048

E-mail

info@oosthuis.nl

Bezoekadres

Innovatieweg 19, 7007CD Doetinchem

Plan een oriëntatiegesprek

Kom langs in onze showroom in Doetinchem voor een vrijblijvend gesprek. We nemen de tijd om uw wensen te bespreken en u te adviseren over de mogelijkheden.

Benieuwd hoe uw prefab woning eruit kan zien?

Neem contact met ons op of doe de woonplan-check.

Ontvang de bouwtekeningen per e-mail

Vul uw gegevens in en ontvang de bouwtekeningen van deze woning.